Kancelarijski prostor – antropometrijski podaci
Još sredinom prošlog veka projektovanje kancelarija postalo je jedno od glavnih oblasti specijalizacije projektanata. Od tada, svake godine se projektuje milioni kvadratnih metara kancelarijskog prostora. Pojava korporizacije i iz toga proistekli zahtevi za gradnjom poslovnih zgrada velikih korporacija razultiralo je u potrebu za planiranjem prostora u koji će moći da se smeste stotine, pa čak i hiljade ljudi.
Poslednjih godina svedoci smo porasta troškova gradnje i cene zemljišta, rastuće nestašice raspoloživih urbanih terena za gradnju, kao i sve većih proizvodnih troškova. To je razlog što se projektantima postavljaju sve strožiji zahtevi u pogledu efikasnije, racionalnije i ekonomičnije upotrebe kancelarijsog prostora.
Usklađivanje ekonomskih imperativa i potreba zaposlenih kada je radni prostor u pitanju u okviru procesa projektovanja zahteva više senzibiliteta i svesti projektanta u pogledu odnosa dimenzija ljudskog tela i unutrašnjeg prostora. Iz tog raloga u daljem tekstu se definišu antropometrijske implikacije odnosa ljudi prema raznim aspektima kancelarijskg prostora, kao što su konferencijske sale, lične i zajedničke kancelarije.
Individualna kancelarija
Projektovanje individualnih kancelarija obuhvata veliki broj istih zahteva u vezi sa dimenzijama i veličinom ljudskog tela kao što je slučaj sa nekim vidovima stambenog prostora. Najvažnija kompomenta individualnog, ili ma kog sličnog kancelarijskog prostora, je sam radni sto i elementi u vezi sa njim. Uzimajući u obzir da korisnik može zaista da provede više od polovine svog vremena kada je budanu neposrednom radnom prostoru, obezbeđivanje projektovane sredine koja odgovara dimenzijama ljudskog tela dobija još veći značaj.

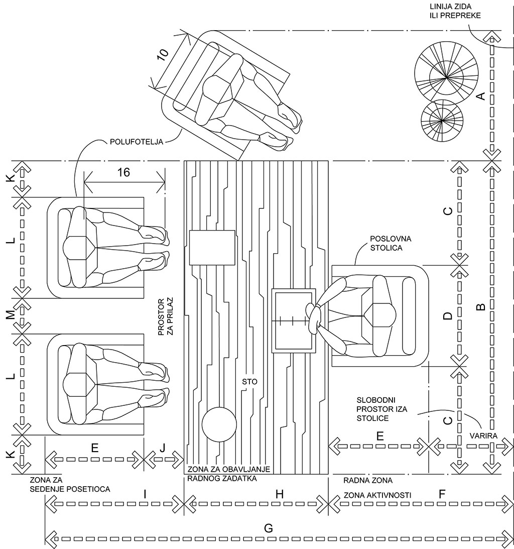
Crtež 1. Poslovni sto/sedenje posetioca
Na crtežu 1. prikazani su osnovni dimenzionalni zahtevi u pogledu mesta za rad sa sedištima za tri posetioca. Dok izgled i proporcije često diktiraju veličinu poslovnog stola i način razmeštanja nameštaja oko njega, opšte prihvaćena veličina stola iznosi 76,2 do 114,3 sa 167,3 do 213,4 cm. Specifične radne navike službenika i priroda njegovog posla moraju se uzimati u obzir u određivanju pogodnih dimenzija radne površine. Puna pažnja mora se pokloniti odabiranju, razmeštanju i razmacima stolica oko stola. Dimenzije raznih zona i prostora, iako bazirane na osnovnim antropometrijskim zahtevima, često zavise i od kretanja u prostoru kao i od tipa nameštaja.
Antropometrijski podaci - crtež 1

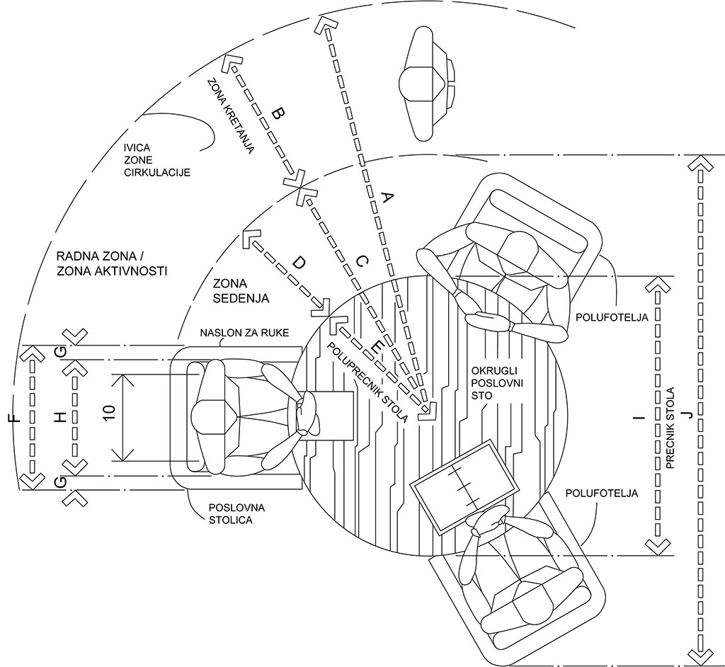
Mnoge službeničke individualne kancelarije gde se održavaju i sastanci projektvane su sa pisaćim stolovima koji nemaju uobičajeni pravugaoni oblik. Takav slučaj je prikazan na crtežu 2 koji prikazuje okrugli pisaći sto. Ovakav sto se često bira kada službenik planira da održava sastanke u kancelariji a ima želju da posetioci i/ili saradnici budu raspoređeni na ravnopravni način oko radne površine. Iako je prikazana minimalna veličina stola od 121,9 cm na ovu dimenziju utiče broj stolica koje treba ravnomerno rasporediti. Uz okrugli poslovni sto mora se nalaziti dodatni ormari ili ormar za držanje predmeta postavljen tako da se lako može dohvatiti iz radne stolice. Odnos bočnog dohvata ruke prema radnoj zoni i zoni aktivnosti se mora brižljivo proučavati.
Antropometrijske mere - crtež 2

Zajednička kancelarija
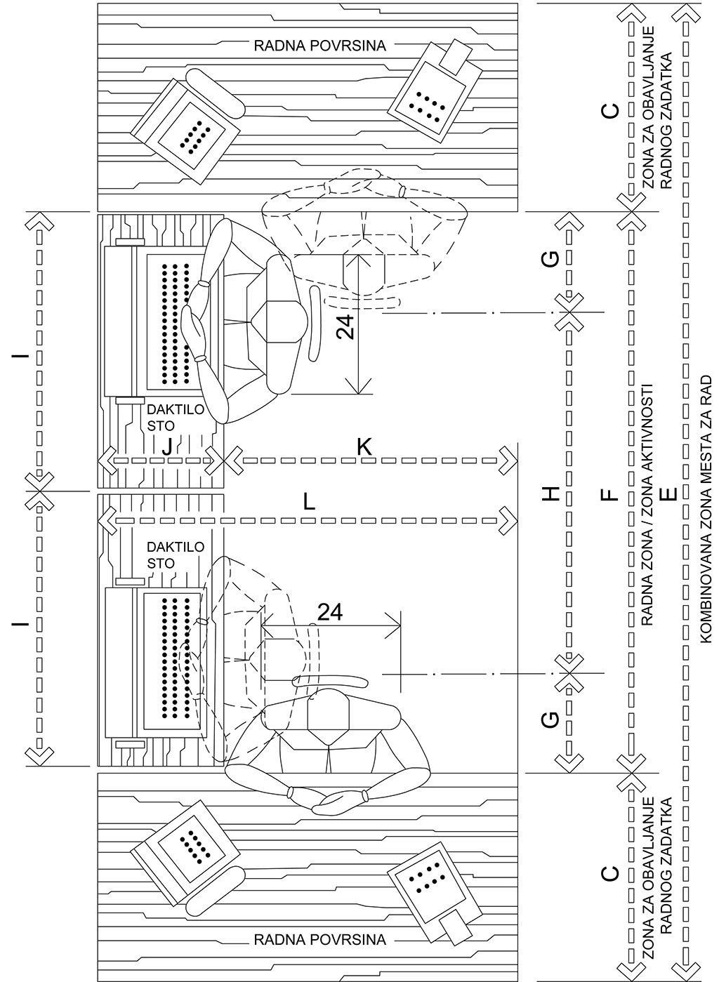
U zajedničkoj kancelariji, kao i u pojedinačnoj, kontakt između korisnika koji sedi i radnog stola ima centralni značaj. Kvalitet kontakta između korisnika i mesta za rad će uticati na opšti komfor, na to da se kancelarijsko osoblje dobro oseća kao i na efikasnost u radu.
Kritični antropometrijski elementi koje treba uzeti u obzir u projektovanju prostora za zajedničku kancelariju su: valjani projekat sekretarske stolice, visine sedišta u vezi sa visinom potkolenice korisnika i površinom daktilo-stola, podesni projekat naslona za leđa radi obezbeđenja pouzadnog oslonca za krsta, valjana visina visoko postavljenih elemenata za odlaganje, mere za bočni dohvat ruke i prednji dohvat ruke većine korisnika. Prostor za kretanje unutar zajedničke kancelarije treba da odgovara maksimalnoj širini i dubini tela krupnijih osoba.Odnos dimenzija i veličine tela osobe koja sedi prema kartoteci predstavlja još jedan zanačajan element.Visina oka korisnika u stojećem i sedećem položaju prema visini niske pregrade u sistemu otvorenog kancelarijskog prostora je još jedan bitan tropometrijski faktor koji se mora uzeti u obzir. Osnovno mesto za rad, kao što je prikazano na crtežu 3, je kamen temeljac za razumevanje antropometrijskih pristupa u planiranju i projektovanju zajedničke kancelarije. Radno mesto mora biti dovoljno veliko da omogući rad sa papirima, kao i smeštanje opreme i drugog pribora koji pomažu korisniku u obavljanju poslova. Veličina radne zone i zone aktivnosti prikazana je na crtežu 3, određena je zahtevima u pogledu prostora za korišćenje uobičajenog daktilo-stola. Ni pod kojim uslovima njena dužina ne sme biti manja od 76,2 cm koliko je potrebno za obezbeđenje dovoljnog prostora za zonu slobodnog pomeranja stolice.

Crtež 3. Osnovno mesto za rad i sedenje posetioca
Antropometrijske mere - crtež 3

Zajednička kancelarija, kao što je danas poznato, bez obzira da li se radi o konvencijalnoj ili o sistemu otvorenog kancelarijskog prostora, sastoji se od ličnih mesta za rad poređanih na razne načine. Grupisanje tipičnog mesta za radu u obliku slova “U” prikazano je na crtežu 4. Ovakvo grupisanje se često koristi kada su službenici određeni da rade na odvojenim radnim mestima kada dele zajedničke obaveze ili rade na zajedničkim poslovima, ili kada se deobom kombinovane zone radnog mesta štedi na površini. Prilikom ovakve podele radnog prostora, pojam teritorije ponekad postaje nejasan usled nedostataka jasne granične linije.

Crtež 4. Susedna mesta za rad/oblik slova „U“
Antropometrijske mere - crtež 4

Konferencijske sale
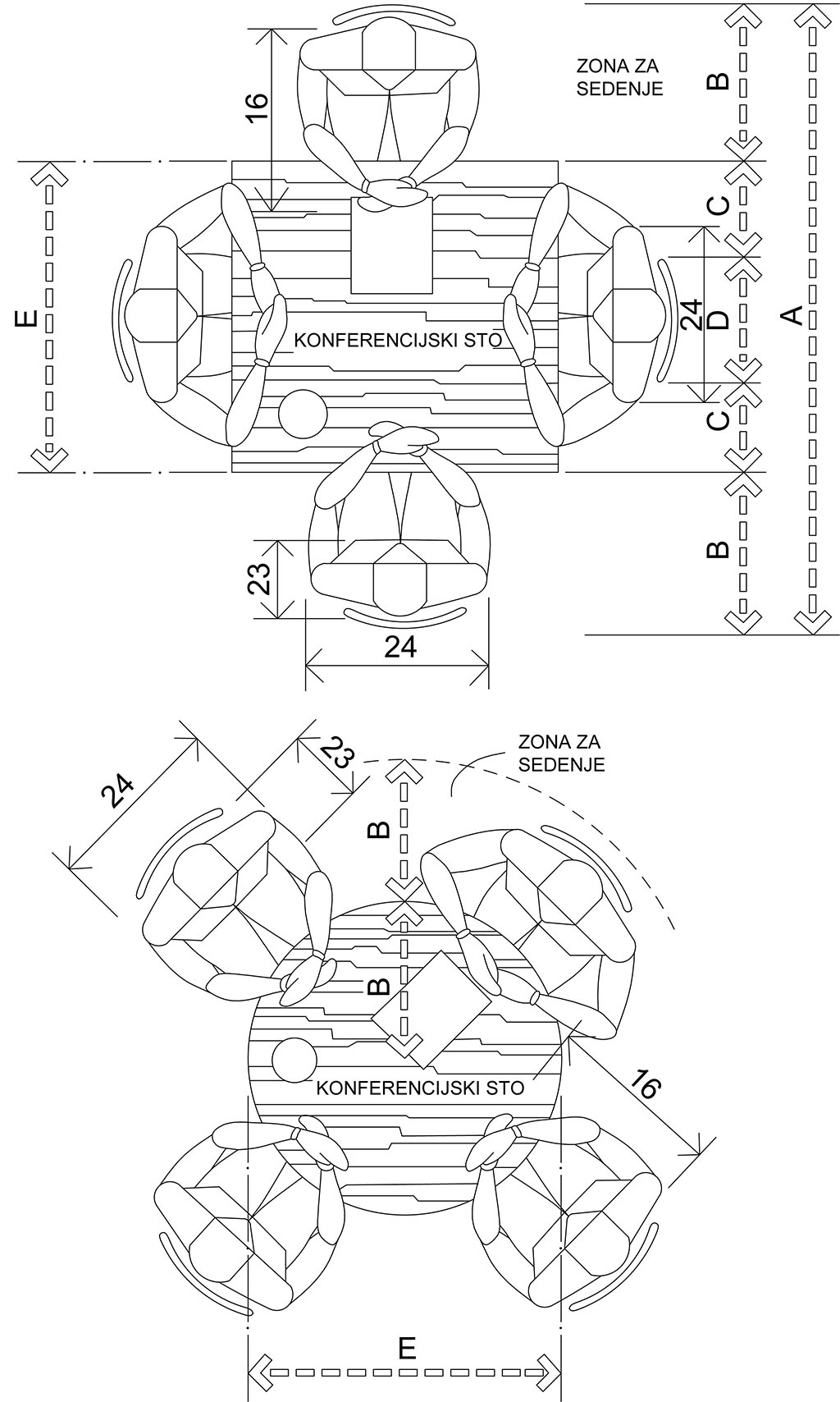
Opšti pristup utvrđivanja veličine stola za konferencije je vrlo sličan kao kod stolova za obedovanje. Umesto stavljanja pribora za obedovanje, ovde treba uzeti u obzir radnu zonu za stavljanje raznih dokumenata, papira i drugog materijala. Količina tog materijala može mnogo varirati u zavisnosti od prirode organizacije i tipa sastanka. Veličina prostora po obodu stola treba u najmanju ruku da bude dovoljna da odgovara maksimalnoj širini tela, da dopusti odvajanje lakata od tela kao i da omogući stavljanje dokumenata i drugog materijala. Ukoliko je reč o nekom javnom predavanju ili sastancima strogo formalne prirode i sa dosta protokola, deljeni prostor oko stola može toliko značajno narasti da je to za potrebe dimenzija ljudskog dela nekorisno. Drugi faktor koji treba razmatrati zajedno sa razmeštanjem stolica je njegov uticaj na vizure uperene na oba kretanja stola. Prostori oko stola radi cirkulacije treba da su prilagođeni maksimalnoj širini tela krupnijeg korisnika kao i da obezbede prostor koji sama stolica zauzima.

Crtež 5. Konferencijski stolovi/četvorougaoni i okrugli
Crtež 5 prikazuje tipičan odnos dve osobe koje sede jedna naspram druge za stolom za sastanke. Razdaljina preko stola postaje važan faktor ako je potrebno razmenjivati papire. Ovde se preporučuje širina od 91,4 do 137,2 cm. Visinu stola takođe treba analizirati zbog njene veze sa visinom potkolenice, visinom kolena i debljinom butine. Celishodno je odrediti granice od 73,7 do 76,2 cm pričemu se preporučuje korišćenje manje dimenzije ukoliko je akcenat rada na pisanju.

Antropometrijske mere - crtež 5
Kao što je na crtežu 6 prikazano potrebno je obratiti pažnju na razmake i cirkulaciju oko većeg konferencijskog stola. Predlaže se da najmanje rastojanje od ivice stola do zida ili najbliže prepreke bude 121,9 cm. Ova dimenzija pod uobičajenim okolnostima ostavlja za zonu prolaza, koja je iza zone za sedenje, od 76,2 do 91,4 cm, računajući meru maksimalno širokih tela krupnije osobe. Za stolicu koja je izvučena preporučuje se veća dimenzija. Stvarne dimenzije konferencijskog stola su u zavisnosti od broja ljudi koji treba da sede. Prikazan četvrtasti sto obezbeđuje prostor za osam ljudi, pri čemu su strane stola u granicama od 137,2 do 152,4 cm. Veća dimenzija je pogodnija za smeštanje krupnijih ljudi kao i za obezbeđenje veće radne zone za svaku osobu. Ovo sračunato za jednu osobu obezbeđuje 76,2 cm, što je dovoljan prostor po obimu stola. Kružni sto na crtežu 6, obezbeđuje udobno smeštanje pet ljudi pri čemu se ostavlja razmak od 76,2 cm za zonu pristupa između stolica. Za zonu sedenja i zonu kretanja mora se obezbediti prostor poluprečnika 182,9 do 205,7 cm.
Crtež 6. Četvorougaoni i okrugli konferencijski sto
Antropometrijske mere - crtež 6

Literatura:
Neufert, E.and P., Architect̕ Data-Third Edition, Edited by: Bousmaha Baiche, DiplArch, Mphil, PhD School of Architecture, Oxford Brookes University and Nicholas Walliman, DipArch, PhD, RIBA, Oxford Brookes University and Nicholas Walliman Panero, J., Zelnik, M. (1987): Antropološke mere i enterijer, zbirka preporuka za standarde u projektovanju, IRO Građevinska knjiga, Beograd





.gif)





